
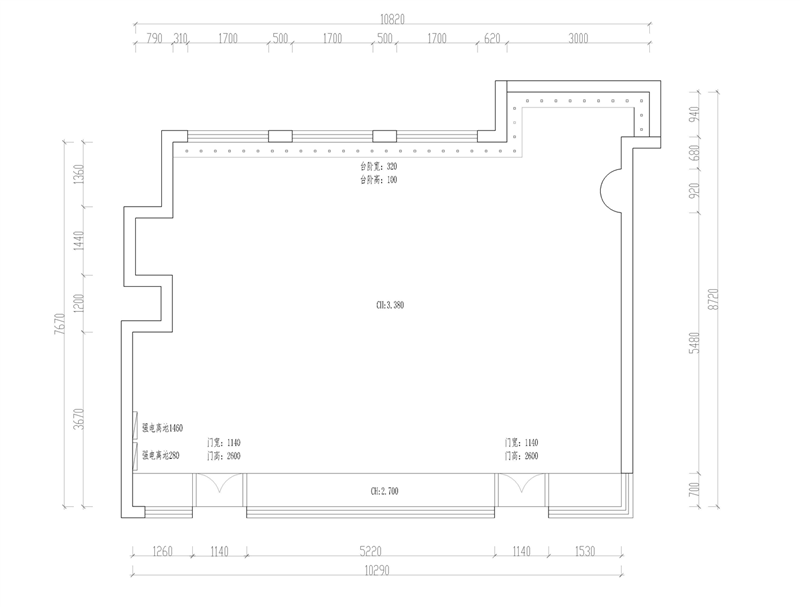
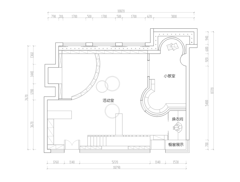
项目地点?| 苏州吴中商城智趣早教中心
面 ? ? ? ?积?| ?75㎡ ? ? ? ? ? ? ? ? ? ? ? ? ? ? ? ? ? ? ? ? ? ? ? ?
开工时间?| ?2017.07
完工时间?| ?2017.08
主要用材?| 涂装板,,,,,,白色黑板漆,,,,,,软包,,,,,,地胶
设计说明:
本案为早教中心,,,,,,取名趣玩,,,,,,主要针对0到6岁宝宝,,,,,,
用材首选环保,,,,,,再而是在造型上做到适用,,,,,,雅观,,,,,,趣味。。
勾住宝宝的好奇心,,,,,,
空间底色摒弃古板幼儿中心的高饱和度颜色,,,,,,
智力开发主要靠产品,,,,,,绘本,,,,,,玩具和先生绘声绘色的故事。。



js555888金沙老品牌建设于2006年,,,,,,是一家专门从事室内情形设计公司。。几年来,,,,,,依附一批高水准的设计师,,,,,,以优异的服务奇异的谋划理念,,,,,,在苏州及周边地区,,,,,,以致天下室内设计行业中赢得了很高的着名度和美誉度。。
“js555888金沙老品牌设计”是专业从事室内设计,,,,,,商业办公空间设计综合性设计机构,,,,,,其LOGO的设计“js555888金沙老品牌”是英文单词“YEAH”的音译,,,,,,转达了年轻人的设计头脑,,,,,,以及生气蓬勃的事情动力。。
审查更多